Planung
von individuellen Blitzschutz- und Erdungsanlagen
Bei der Realisierung moderner Neubauten bzw. der Sanierung von bestehenden Objekten, kommen heutzutage eine Vielzahl an elektrischen und elektronischen Gebäudeausrüstungen zum Einsatz. Dabei reichen teilweise schon kleinste Überspannungen, die z.B. bei Schalthandlungen der Netzbetreiber oder aber durch entfernte Blitzeinschläge zu Stande kommen, um diese empfindlichen Geräte zu beschädigen. Ein koordinierter innerer Blitzschutz würde solche Überspannungen sicher ableiten.
Schlimmer noch sind die Auswirkungen direkter Blitzeinschläge auf Gebäude. Diese reichen von Brandentwicklung oder sogar Explosion bis hin zu Personenschäden. Ein gut geplanter und fachgerecht montierter äußerer Blitzschutz kann einen Schutzgrad von bis zu 99% erreichen.
Produktionsausfälle, Schäden an Gebäuden, Kulturgütern oder gar der Verlust von Menschenleben durch Blitzeinschläge, gilt es unter allen Umständen zu vermeiden.
Von uns erhalten Sie individuelle, auf Ihre örtlichen Gegebenheiten abgestimmte Blitzschutz- bzw. Erdungskonzepte, welche nach den aktuellen technischen und normativen Bestimmungen (u.a. DIN EN 62305 , DIN 18104) geplant sind.
Bei der baulichen Ausführung können Sie gerne auf Ihre vertrauten Montagefirmen, oder aber auf unsere Partnerfirmen zurückgreifen.
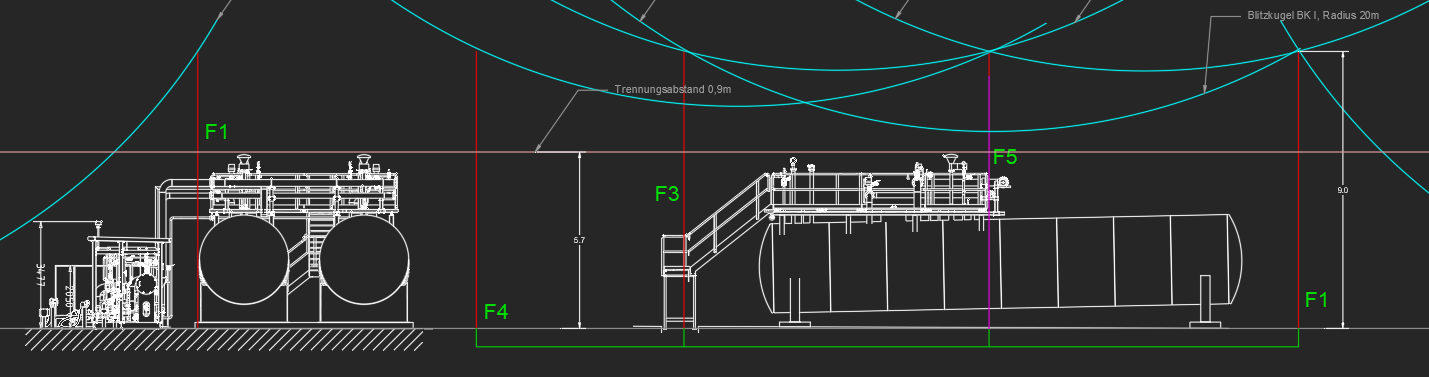
Leistungen im Detail
• Risikoanalyse objektbezogen nach DIN EN 62305 / VDE 0185 305 oder in Anlehnung an die VdS 2010
• Ermittlung von Schutzwinkeln, Trennungsabständen und Erder-Längen
• Planung von isolierten und getrennten Fangeinrichtungen bzw. Ableitungen
• Messung des spezifischen Erdungswiderstandes zur Erderberechnung
• Schutzkonzepte für den inneren Blitzschutz (Blitzstrom- bzw. Überspannungsableiter)
• Leistungsverzeichnisse für Neubau und Reparaturen einschl. Montage- / Revisionsplänen in CAD

